詳 細
※画像をクリックすると、拡大写真をご覧頂けます。
| 物件種目 | 新築1棟売マンション | 販売価格 | 28,380万円 |
|---|---|---|---|
| 所在地 | 千歳市豊里1丁目 | 年収 | 約1,759万円 (満室時年収) |
| 交通 | 千歳線「千歳駅」徒歩22分 | 利回り | 6.20% |
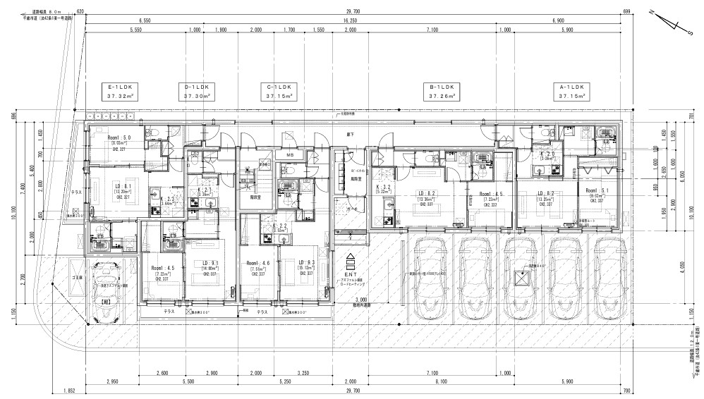
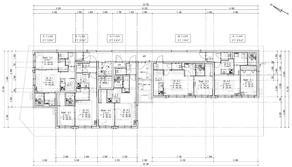
| 建物名 | 仮称)豊里1丁目MS | 建物構造 | RC造4階建 |
| 土地面積 | 377.15㎡ (約114.08坪) | 建物面積 | 延べ913.92㎡ (約276.46坪) |
| 間取り×総戸数 | 1LDK×20戸 計20戸 | 駐車場 | 駐車場 6台分 |
| 築年数 | 令和8年8月末完成予定 | 都市計画 | 市街化区域 |
| 用途地域 | 準工業地域 | 建ぺい率 | 60% |
| 容積率 | 200% | 現状 | 建築中 |
| 土地権利 | 所有権 | 引渡日 | 相談 |
| 接道 | 南西側12m公道に間口約30.269m接す、北西側8m公道に間口約9.773m接す、隅切りあり | ||
| 設備 | ガス給湯、ガス暖房、ロードヒーティング、オートロック、入り口モニター付き防犯カメラ、宅配BOX、エアコン(冷房)、シャワートイレ、シャンプードレッサー | ||
| 備考 | ラピダスで活況の千歳市新築RCマンション!詳細はお気軽にお問い合わせください。 | ||





