詳 細
※画像をクリックすると、拡大写真をご覧頂けます。
| 物件種目 | 新築1棟売マンション | 販売価格 | 24,290万円 |
|---|---|---|---|
| 所在地 | 白石区南郷通14丁目北 | 年収 | 約1,485万円 (満室時年収) |
| 交通 | 東西線「南郷13丁目駅」徒歩4分 | 利回り | 6.12% |
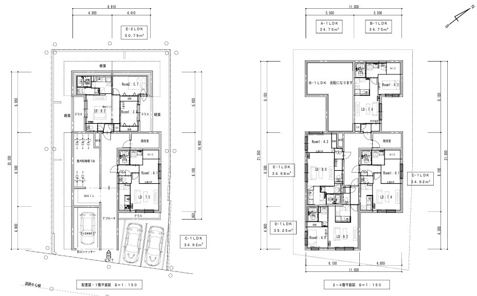
| 建物名 | 仮称)南郷通14丁目北MS | 建物構造 | RC造4階建 |
| 土地面積 | 330.47㎡ (約99.96坪) | 建物面積 | 延べ767.94㎡ (約232.30坪) |
| 間取り×総戸数 | 1LDK×16戸・2LDK×1戸 計17戸 | 駐車場 | 駐車場 3台分 |
| 築年数 | 令和8年10月末完成予定 | 都市計画 | 市街化区域 |
| 用途地域 | 第2種中高層住居専用地域 | 建ぺい率 | 60% |
| 容積率 | 200% | 現状 | 建築中 |
| 土地権利 | 所有権 | 引渡日 | 相談 |
| 接道 | 南東側8m公道に間口約13.341m接す | ||
| 設備 | 都市ガス給湯、ガス暖房、ロードヒーティング、オートロック、入り口モニター付き防犯カメラ、宅配BOX、エアコン(冷房)、シャワートイレ、シャンプードレッサー | ||
| 備考 | 地下鉄駅徒歩4分の都市ガスRC新築物件!詳細はお気軽にお問い合わせください。 | ||




